ImmobilienDetails

Warnstedt Doppelhaus - Wohnen im Passivhaus+

Kaufpreis: 447.000,00 €

details

largePicture
  • Cam_02_JPG
  • Cam_01_JPG
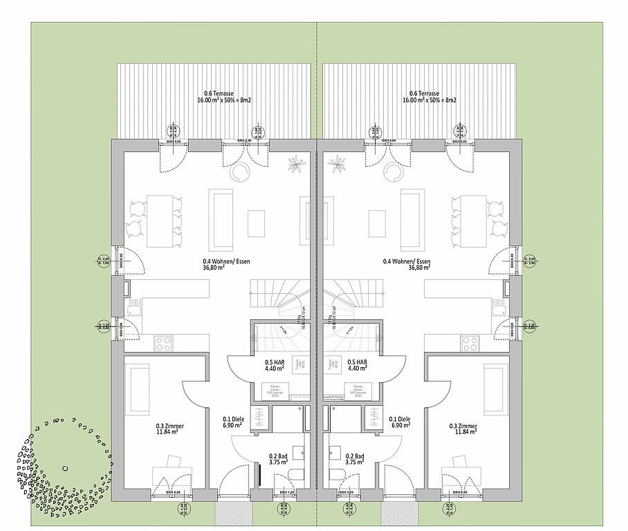
  • Grundriss DH - EG
  • Grundriss DH - OG
  • Lageplan

Beschreibung

Willkommen in der Zukunft - Verwirklichen Sie sich Ihren Traum vom Eigenheim mit dieser brillanten Doppelhaushälfte.

 

Ein smartes Passivhaus mit zertifiziert nachhaltigen Baumaterialen, ganz ohne hohe Heizkostennachzahlung, denn hier heizen Sie mit einer energieeffizienten Luft/Luft- Wärmepumpe, welche mithilfe einer Photovoltaikanlage inkl. Speicher alle Wohnräume kontinuierlich erwärmen oder auch kühlen kann. Zudem ist die Heizungsanlage von der Firma Nilan mit einem Pollen- und Staubfilter ausgestattet, welche gerade Allergiker "aufatmen" lässt. Alle Badezimmer verfügen über einen zusätzlichen Handtuchheizkörper.

 

Auf ca. 130 m² Wohnfläche, 5 Zimmern, offener Wohnküche, Badezimmer und Gäste-WC können Sie, durch stilvolle, bodentiefe Fenster, die Aussicht zur Warnstedter Mühle genießen. Durch den begehbaren, voll gedämmten Dachboden, gewinnen Sie noch zusätzlichen Raum für Abstellmöglichkeiten oder auch als Hobbyraum.

 

Auf einem Grundstück von ca. 309 m² findet eine herrliche Sonnenterrasse ihren Platz. Es stehen jeweils 2 Pkw-Stellplätze pro Doppelhaushälfte sowie eine Möglichkeit zur Installation einer Wallbox zur Verfügung.

 

Durch die KfW40 Förderung bietet diese Immobilie eine attraktive Vollfinanzierbarkeit mit zinsgünstigem Kredit und einer geringen monatlichen Rate.

 

Sie übernehmen eine schlüsselfertige Immobilie mit fertigen Außenanlagen. Sie können direkt einziehen. Die Bauzeit beträgt 4-6 Monate.

 

Hat diese Immobilie Ihr Interesse geweckt? Senden Sie uns eine Anfrage und unser Immobilienteam steht Ihnen sehr gern zur Verfügung.

Ausstattung

- Passivhaus +

- Luft/Luftwärmepumpe (Nilan) „Compact-P “

- kontrollierte Wohnraumlüftung per App steuerbar

- Photovoltaikanlage mit Speicher

- Staub- und Pollenfilter

- Energie3 Kunststofffenster vom europ. Marktführer

- Badewanne

- Dusche

- Gäste-WC

- Terrasse

- 2 Pkw-Stellplätze

- Bauzeit 4- 6 Monate

- attraktives KfW Finanzierungsmodell

- Energiebedarf unter 5 kWh

- wenig Wärmeverlust

- Kühlfunktion

- elektrische Rollläden

Lage

Warnstedt ist ein Ortsteil der Stadt Thale im Landkreis Harz in Sachsen-Anhalt.

 

Das gesellige Dorf hat 626 Einwohner und liegt am Nordostrand des Harzes. Der Ort Warnstedt selbst ist ein über 1.000 Jahre altes Dorf, das vom Turm der Kirche St. Georg überragt wird.

 

Sie genießen den Blick auf die Warnstedter Mühle, das weithin sichtbare Wahrzeichen des Ortes.

 

Der Ort liegt zwischen Thale und Quedlinburg, die Anbindung an die A36 über die Auffahrt in Westerhausen ist schnell zu erreichen.

 

Auch Einkaufsmöglichkeiten sowie Ärzte, Apotheken, Schulen und Kitas sind in Thale oder Quedlinburg zu finden und ca. 5 Minuten erreichbar.

Sonstiges

KEIN MIETKAUF MÖGLICH!

Es gelten unsere Allgemeinen Geschäftsbedingungen. Flächen- und Maßangaben sind ca. -Werte.

BITTE BEACHTEN SIE:

Wir bitten um Ihr Verständnis, dass wir um die Sicherheit und Privatsphäre der Bewohner zu wahren, nur vollständige, schriftliche Anfragen (E-Mail, Fax, Brief) mit Namen, vollständiger Anschrift und Telefonnummer beantworten. Gerne stehen wir Ihnen auch zu einer persönlichen Beratung in unserem Büro zur Verfügung.

 

Besichtigungen können ausschließlich nach vorheriger Terminabsprache über unser Büro vereinbart werden.

 

Alle Angaben nach bestem Wissen und laut Auskunft des Verkäufers. Das Exposé ist eine Vorabinformation. Für die Richtigkeit und Vollständigkeit der Angaben wird keine Gewähr bzw. Haftung übernommen. Als Rechtsgrundlage gilt allgemein der notariell abgeschlossene Kaufvertrag. Ein Zwischenverkauf und Irrtümer sind vorbehalten.

 

Unsere Leistungen für Sie als Käufer:

- Besprechung des konkreten Suchwunsches

- ein persönlicher Ansprechpartner vor Ort

- ausschließlich gemeinsame Besichtigungstermine

- kostenlose Finanzierungsvermittlung

- Vorbereitung des notariellen Kaufvertrages und Begleitung der notariellen Abwicklung

- Kommunikation mit Behörden und Ämtern

 

Unsere Leistungen für Sie als Immobilienverkäufer:

- aktuelle Marktwerteinschätzung Ihrer Immobilie

- Immobilienwertermittlung

- Erstellung von Wohnflächenberechnungen und Grundrissen

- Beratung zum Energieausweis nach Energieeinsparverordnung

- Aufnahme von professionellen Fotos und Luftbildaufnahmen mit Drohne

- Erstellung eines Verkaufsexposés

- Ansprache bereits registrierter Suchkunden

- regionale/überregionale Vermarktung

- Aufbereitung und/oder Pflege der Immobilie samt Grundstück

- Präsentation des Angebots im Internet

- Abstimmung mit Behörden und Ämtern

- Vorbereitung des notariellen Kaufvertrags

- Begleitung der notariellen Abwicklung

- Objektübergabe inkl. Erstellung eines professionellen Übergabeprotokolls

Das Blickpunkt Immobilien Team freut sich auf Ihren Anruf!

Objekt Nr.: 132036520#9MEMt
Haustyp:Haus
Wohnfläche:130 m²
Grundstücksfläche:309,31 m²
Stellplatzart:Freiplatz
Anzahl Stellplätze:2
Zustand:Erstbezug
Status:frei
Frei ab:Sommer 2023
Zimmeranzahl:5
Anzahl Schlafzimmer:4
Anzahl Badezimmer:2
Baujahr:2023
Anzahl Etagen:2
Kaufpreis:447.000,00 €
Provision:5.950,- €
Energieausweisart:Bedarf
Energiepass gültig bis:14.04.2033
Endenergiebedarf:4
Primärenergieträger:Wärmepumpe
Wertklasse gemäß EnEv 2014:A+
Baujahr:2023
Energieausweis-Ausstellungsdatum:14.04.2023
Energieausweis-Jahrgang:ab 1.5.2014
Gebäudeart:Wohngebäude

Anbieter

Frau Sabrina Fahldieck
Telefon: +49 3947 7754330

Fax: +49 3947 7759049

Blickpunkt Immobilien GmbH
Hubertusstr. 19
06502 Thale
 

Tel. Thale:

Tel. Quedlinburg:

Tel. Wernigerode:


Fax:
03947 - 77 59 049

Unsere Bürozeiten

Montag
08.00 - 12.00
13.00 - 16.00

Dienstag
08.00 - 12.00
13.00 - 18.00

Mittwoch
08.00 - 12.00
13.00 - 15.00

Donnerstag
08.00 - 12.00
13.00 - 16.00

Freitag
08.00 - 12.00

Kostenlose Immobiliensprechstunde

Montag
14.00 - 16.00

Mittwoch
09.00 - 11.00

Hotline: 03947 - 77 54 330

Ihre Ansprechpartner

Immobilienverkauf:
03947 - 77 54 330

Vermietung / Hauswart:
03947 - 77 54 331