ImmobilienDetails

Anlageobjekt in Halberstadt

Kaufpreis: 439.000,00 €

details

largePicture
  • Kein Titel (84.1 x 59.4 cm).jpg
  • IMG_3872
  • IMG_3862
  • IMG_3861
  • IMG_3855
  • IMG_3856
  • IMG_3857
  • IMG_3858
  • IMG_3859
  • IMG_3860
  • IMG_3863
  • IMG_3869
  • IMG_3874
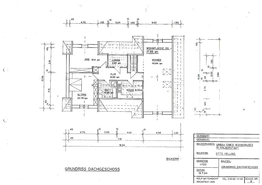
  • Grundriss_DG
  • Grundriss_1.OG
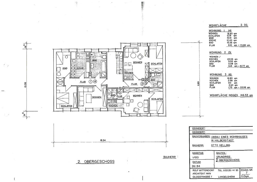
  • Grundriss_2.OG
  • Grundriss EG

Beschreibung

Dieses voll vermietete Mehrfamilienhaus befindet sich in zentraler Wohnlage von Halberstadt.

 

Um ca. 1908 erbaut und mit ca. 454 m² Wohnfläche ausgestattet, verfügt die Immobilie über 9 Wohnungen. Insgesamt sind 20,5 Zimmer vorhanden, verteilt auf 1,5, 2 und 3-Zimmer-Wohnungen.

 

Vollständig saniert wurde die Immobilie im Jahr 1996.

 

Die Immobilie wird mit einer Gaszentralheizung beheizt und ist teilweise unterkellert. Zudem sind genügend Außenstellplätze und eine Zufahrt vorhanden.

 

Die Nettokaltmieteinnahmen betragen 30.420,- € im Jahr.

Lage

Halberstadt - das Tor zum Harz, ist Kreisstadt des Landkreises Harz. Die Stadt liegt im nördlichen Harzvorland und beeindruckt durch die zahlreichen kunstgeschichtlichen Ensemble, wie zum Beispiel der Halberstädter Dom als auch die Naturschutzgebiete im südlichen Teil Halberstadts, die Spiegelsberge, Klusberge, sowie Thekenberge. Im Nord-Osten befindet sich der beliebte Halberstädter See, welcher an Sommertagen zum Schwimmen einlädt. Die Stadt bietet zahlreiche weitere Freizeitgestaltungsmöglichkeiten, wie zum Breispiel den Reitsport, Tennis u.v.m.. Halberstadt verfügt über eine gute Verkehrsanbindung. Durch die Stadt führen die Bundesstraßen B 79 und B 81, hierdurch wird die Verkehrsführung zu der entfernten Autobahn, der A 36 gewährleistet. Im Umkreis von Halberstadt liegen die Städte Blankenburg (18 km), Wernigerode (ca. 22 km) und Quedlinburg (ca. 15 km).

Sonstiges

KEIN MIETKAUF MÖGLICH!

Es gelten unsere Allgemeinen Geschäftsbedingungen. Flächen- und Maßangaben sind ca. -Werte.

BITTE BEACHTEN SIE:

Wir bitten um Ihr Verständnis, dass wir um die Sicherheit und Privatsphäre der Bewohner zu wahren, nur vollständige, schriftliche Anfragen (E-Mail, Fax, Brief) mit Namen, vollständiger Anschrift und Telefonnummer beantworten. Gerne stehen wir Ihnen auch zu einer persönlichen Beratung in unserem Büro zur Verfügung.

 

Besichtigungen können ausschließlich nach vorheriger Terminabsprache über unser Büro vereinbart werden.

 

Alle Angaben nach bestem Wissen und laut Auskunft des Verkäufers. Das Exposé ist eine Vorabinformation. Für die Richtigkeit und Vollständigkeit der Angaben wird keine Gewähr bzw. Haftung übernommen. Als Rechtsgrundlage gilt allgemein der notariell abgeschlossene Kaufvertrag. Ein Zwischenverkauf und Irrtümer sind vorbehalten.

 

Unsere Leistungen für Sie als Käufer:

- Besprechung des konkreten Suchwunsches

- ein persönlicher Ansprechpartner vor Ort

- ausschließlich gemeinsame Besichtigungstermine

- kostenlose Finanzierungsvermittlung

- Vorbereitung des notariellen Kaufvertrages und Begleitung der notariellen Abwicklung

- Kommunikation mit Behörden und Ämtern

 

Unsere Leistungen für Sie als Immobilienverkäufer:

- aktuelle Marktwerteinschätzung Ihrer Immobilie

- Immobilienwertermittlung

- Erstellung von Wohnflächenberechnungen und Grundrissen

- Beratung zum Energieausweis nach Energieeinsparverordnung

- Aufnahme von professionellen Fotos und Luftbildaufnahmen mit Drohne

- Erstellung eines Verkaufsexposés

- Ansprache bereits registrierter Suchkunden

- regionale/überregionale Vermarktung

- Aufbereitung und/oder Pflege der Immobilie samt Grundstück

- Präsentation des Angebots im Internet

- Abstimmung mit Behörden und Ämtern

- Vorbereitung des notariellen Kaufvertrags

- Begleitung der notariellen Abwicklung

- Objektübergabe inkl. Erstellung eines professionellen Übergabeprotokolls

Das Blickpunkt Immobilien Team freut sich auf Ihren Anruf!

Objekt Nr.: 132036465#9MEMt
Haustyp:Haus
Nutzfläche:226,33 m²
Wohnfläche:454,45 m²
Grundstücksfläche:893 m²
Stellplatzart:Freiplatz
Zustand:gepflegt
Status:vermietet
Zimmeranzahl:21
Anzahl Badezimmer:9
Heizungsart:Gasheizung
Bodenbelag:Fliesen, Laminat, Linoleum
Baujahr:1908
Anzahl Etagen:4
Kaufpreis:439.000,00 €
Nettojahresmiete:30.420,00 €
Provision:5,95 %
Energieausweisart:Bedarf
Energiepass gültig bis:28.04.2024
Endenergiebedarf:149.8
Primärenergieträger:Gas
Baujahr:1908
Energieausweis-Ausstellungsdatum:29.04.2014
Energieausweis-Jahrgang:vor 2014
Gebäudeart:Wohngebäude

Anbieter

Frau Sabrina Fahldieck
Telefon: +49 3947 7754330

Fax: +49 3947 7759049

Blickpunkt Immobilien GmbH
Hubertusstr. 19
06502 Thale
 

Tel. Thale:

Tel. Quedlinburg:

Tel. Wernigerode:


Fax:
03947 - 77 59 049

Unsere Bürozeiten

Montag
08.00 - 12.00
13.00 - 16.00

Dienstag
08.00 - 12.00
13.00 - 18.00

Mittwoch
08.00 - 12.00
13.00 - 15.00

Donnerstag
08.00 - 12.00
13.00 - 16.00

Freitag
08.00 - 12.00

Kostenlose Immobiliensprechstunde
nach Vereinbarung

Hotline: 03947 - 77 54 330

Ihre Ansprechpartner

Immobilienverkauf:
03947 - 77 54 330

Vermietung / Hauswart:
03947 - 77 54 331